物件の特徴
主な設備
電気
オール電化
上水道
下水道
浄水器
食器洗浄乾燥機
IHクッキングヒーター
コンロ三口
カウンターキッチン
システムキッチン
オープンキッチン
バス
オートバス
追焚機能
浴室暖房
浴室乾燥機
浴室に窓
トイレ
トイレ2箇所
温水洗浄便座
室内洗濯機置場
洗髪洗面化粧台
モニタ付インターホン
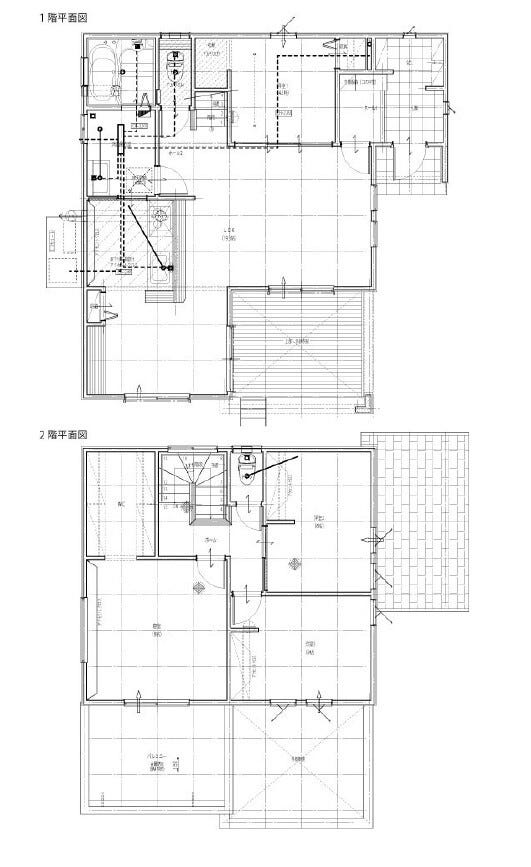
LDK18畳以上
複層ガラス
全居室複層ガラス
フローリング
全室フローリング
シャッター雨戸
ハイサッシ
24時間換気システム
クローゼット
ウォークインクローゼット
床下収納
全居室収納
シューズボックス
主な特徴
2階建
おススメその1 パノラマ画像♪
HPにて360度パノラマ画像をご覧いただけます。
おススメその2 住宅ローンのご相談♪
購入時または購入後に掛かる費用まで、ご不明点は
しっかりサポート致しますのでご安心ください。
おススメその3 全国展開700店舗のネットワーク!
新築も中古もお客様のご希望のエリア、予算に合わせてお探し致します♪
物件概要
| 価格 | 4,499万円 | 間取り | 4LDK |
|---|---|---|---|
| 物件種別 | 新築一戸建て | ||
| 所在地 | 福岡県久留米市東櫛原町 | ||
| アクセス | 西鉄天神大牟田線『櫛原』 徒歩7分 (約560m) |
||
| 建物面積 | 107.64㎡ | 駐車場 | なし |
| 築年月 | 2026年(令和8年)03月予定 | 建築確認 | 第R07確認建築福住セ本00590号 |
| 建物構造 | 木造 2階建 | 工法 | |
| 主要採光 | バルコニー | ||
| 保証・評価 | |||
| 分譲情報 | 【販売戸数】:3戸 |
||
| 土地面積 | 213.31㎡(64.52坪) | 接道 | 北東側幅 約4.7m 間口 約11.30m |
| 私道 | セットバック | ||
| 地目 | 宅地 | 地勢 | |
| 権利 | 所有権 |
||
| 都市計画 | 市街化区域 |
用途地域 | 1種住居 |
| 建ぺい/容積率 | 60% / 190% | 土地国土法 | |
| 許可番号 | 建築基準法 | ||
| 法令制限 | |||
| 小学区 | 南薫小学校 徒歩9分 (約720m) | 中学区 | 櫛原中学校 徒歩11分 (約880m) |
| 現況 | 建築中 | 引渡 | 期日指定:2026年03月以降 |
| その他費用 | |||
| 周辺環境 | 西鉄天神大牟田線 櫛原駅 徒歩6分 (約460m) セブンイレブン 久留米中央公園前店 徒歩9分 (約650m) 久留米市立南薫小学校 徒歩9分 (約720m) 久留米市立櫛原中学校 徒歩11分 (約810m) 西鉄ストア宮の陣店 徒歩15分 (約1150m) にしてつストア 宮ノ陣店 徒歩15分 (約1140m) セブンイレブン 久留米諏訪野町店 徒歩13分 (約970m) 西鉄天神大牟田線 宮の陣駅 徒歩16分 (約1230m) 宮ノ陣郵便局 徒歩15分 (約1190m) ファミリーマート 東櫛原店 徒歩14分 (約1090m) |
||
| 備考 | |||
| 物件番号 | 4452275 | 取引態様 | 媒介 |











担当エージェント:今里
土地・新築、中古戸建、全国700店舗以上の
ネットワークでお手伝い致します!
0942-50-5735鳥栖郵便局そば、お気軽にご相談ください♪